Trilhos para Ponte Rolante e Pórticos - ASCE 45 - Barra 6 Metros

REF: TRILHO.ASCE45 Produto Esgotado
Produto esgotado :( Infelizmente não temos mais este produto em estoque.
Aproveite para conferir outros produtos em nossa loja!
Você é mecânico e quer acesso aos nossos preços exclusivos?
Imagem Mecânico

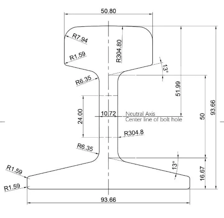
Trilhos para Ponte Rolante e Pórticos - ASCE 45 - Barra 6 Metros

Os trilhos são ideais para aplicações industriais e de transporte leve.

Possuem uma maior resistencia que barras chatas ou quadrados de mesmo peso/m

Com um perfil mais leve, esses trilhos oferecem resistência e durabilidade

Fabricados em aço de alta qualidade, garantem uma longa vida útil e são resistentes à corrosão

Indicado para ponte rolante com cargas até 10 Ton - Consultar um especialista

Peso aproximado por barra de 6 metros : 132 Kg

Comprimento : 6 metros / Barra


Características
- Fabricante: TCS
Dimensões do Produto
- Largura: 20,00 cm - Altura: 20,00 cm - Comprimento: 6.000,00 cm - Peso: 132,00 kg(s)